|
|
|
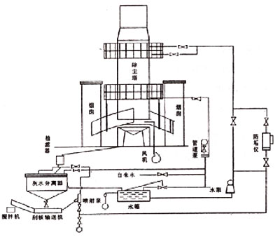
BLS-8L濕式立窯除塵器是總結了過去立窯濕式除塵器的結構特點以及不足之處改進而來的新型濕式除塵器,采用集射流誘導技術,設備結構使用旋風雙水膜及噴淋洗滌為一體的二級除塵和新型灰水分離技術相結合,BLS-8L濕式立窯除塵器,相比于傳統的立窯除塵器,BLS-8L在實際應用中得到了充分的肯定和評價
一、BLS-8L濕式立窯除塵器設備結構:
BLS-8L立窯除塵器設備主要由主體除塵塔,灰水分離裝置、輔助設備(水泵、風機、電控臺)等部件組成,通過管線將設備連接成一個粉塵利用和再循環的完整除塵系統。
(1)主塔與副塔材質均采用不銹鋼板,外塔直徑2400mm,高12700mm,副塔直徑500mm,放置于主塔中央,下部呈環形布置八個旋流噴嘴,用于
(2)灰水分離器材質為普通鋼板,內壁布置防腐樹膠,整體直徑二點八米,高四點三米,分離器中間用減速機為集泥裝置提供動力
(3)在集泥臂的作用下將存留的灰泥向中心刮出,從而排出分離器。
二、BLS-8L濕式立窯除塵器工作原理:
煙囪中的廢棄在誘導作用下,切向送入除塵塔內部,形成旋風氣流,其中大部分的塵粒在離心力的作用下甩向器壁,從而被水膜捕捉到,此為以及除塵,含塵氣體繼續上升,在上升的過程中,噴淋裝置開啟,此為二級除塵,除塵后的灰水隨之流入分離器,從分離器做水泥分離后,排至輸送機,再經由輸送機送入攪拌機,得到粉塵球,實現粉塵回收的目的。而經分離器分離出的清水,從分離器中流至水箱而后被送入除塵塔,除塵塔又會利用噴嘴噴出形成水膜,實現污水的循環利用。

三、BLS-8L濕式立窯除塵器性能參數:
|
單位 |
技術數據 |
|
|
BLS-8L除塵塔 |
||
|
最大處理廢氣量 |
m3/h |
60000 |
|
處理前允許最大含塵量 |
g/m3 |
≤12 |
|
正常工作下排放含塵濃度 |
mg/m3 |
150-600 |
|
循環水量 |
m3/h |
|
|
最大消耗水量 |
m3/h |
<0.1 |
|
處理廢氣允許最高溫度 |
℃ |
<600 |
|
HSF-12灰水分離器 |
||
|
處理能力 |
m3/h |
≤12 |
|
入口污水含塵濃度 |
g/l |
≤65 |
|
排出污水含塵濃度 |
g/l |
>600 |
|
澄清水含塵濃度 |
g/l |
≤0.2 |
|
功率 |
||
|
裝機總容量 |
kw |
45 |
|
運行容量 |
kw |
34 |
2018年迎來了建材行業水泥攪拌站倉頂除塵器改造升級的熱潮,其最根本的原因有兩點:其一,原有水泥攪拌站料倉配套的濾筒式除塵器不能滿足長期使用,剛開始還有效果,使用一段時......







